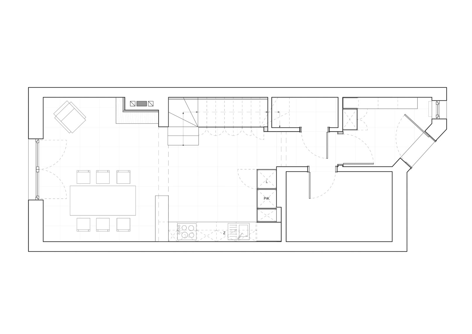
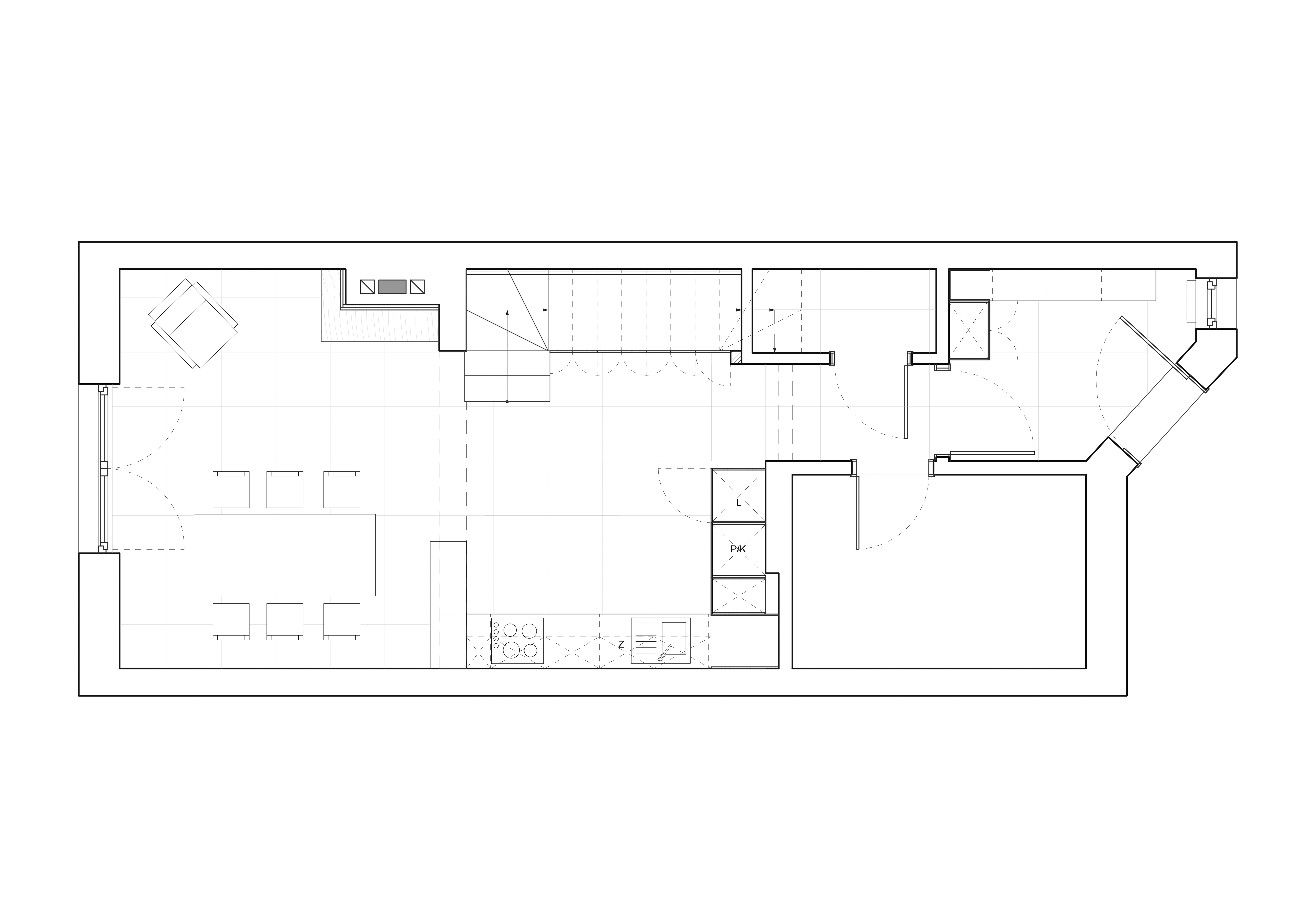
Dom w zabudowie szeregowej: kuchnia – jadalnia, salon, schody
Powierzchnia użytkowa: 140 m²
Lokalizacja: Kępno
Inwestor: prywatny
Projekt: 2020
Materiały
Blat kuchenny: dąb naturalny klejony
Stolarka: lakierowana płyta MDF-RAL 5014 wykończenie mat
Ściana kuchenna: lacobel – szkło lakierowane
Okładzina klatki schodowej: drewno – sosna bejcowana















